Вхід на сайт

Ел. пошта:
Пароль:

Реєстрація на сайті

Призвіще: Область:
Ім'я: Населений пункт:
    По батькові: Номер телефону:
    Ел. пошта: Компанія:
      Пароль: Посада:
      Повторіть пароль: Рік початку роботи:
      Фото:
      З правилами розміщення об'єктів погоджуюсь

      Забули пароль?

      Вкажіть ел. пошту — ми надішлемо Вам новий пароль для входу
      Ел. пошта:

      Проблема на сайті

      Закрити
      Ваш e-mail:
      (необов'язково)
      Розкажіть нам, що сталось

      112_1.jpg

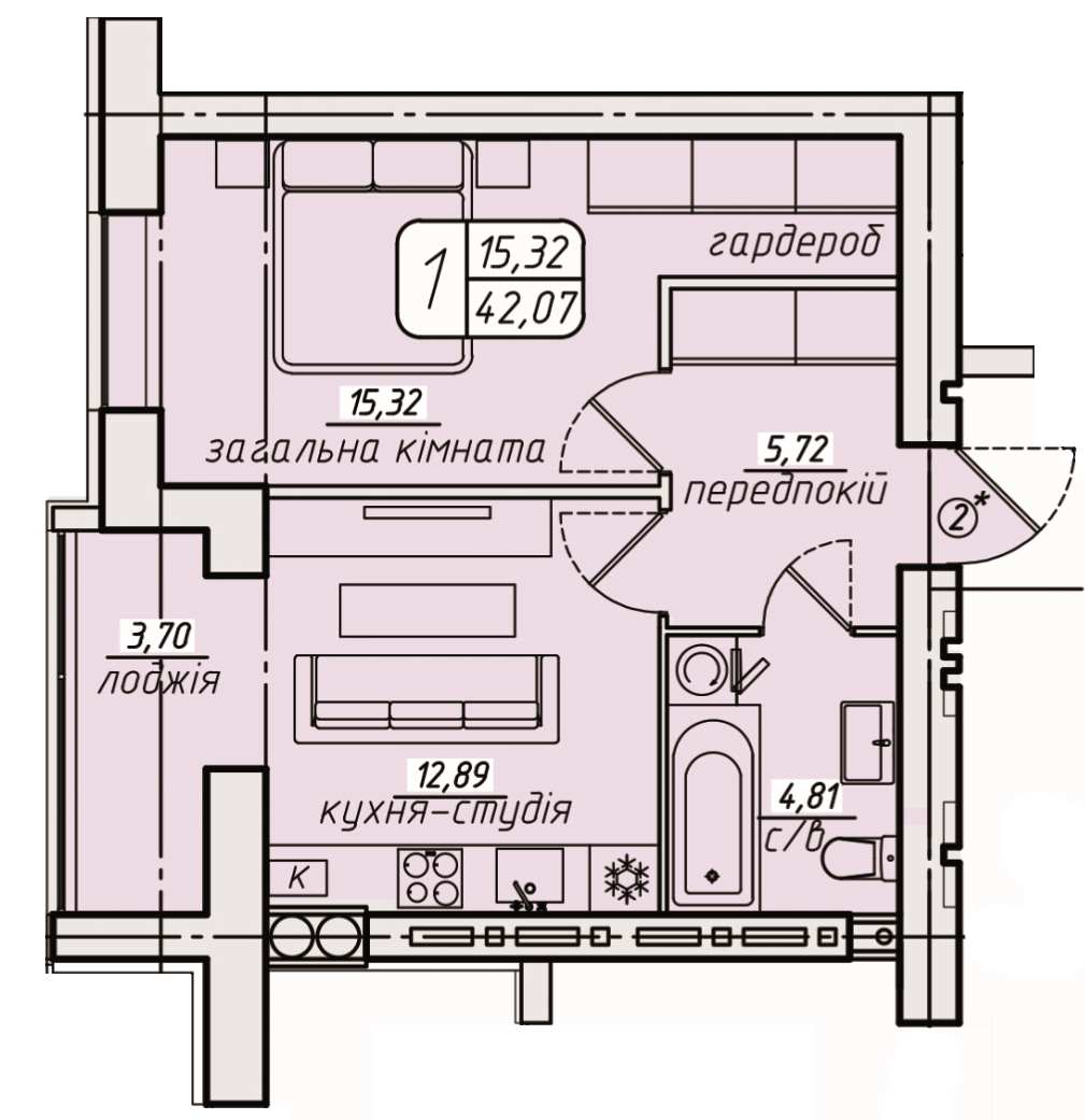
      шос. Барское, 105 — Продається квартира

      (г. Винница, Ленинский район)

      42000 $

      Загальна площа: 42 кв.м

      Жила площа: 15 кв.м

      Площа кухні: 17 кв.м

      Кімнат: 1

      Поверх: 6

      К-ть поверхів: 6

      Будинок зданий навесні 2024 року.
      Створено ОСББ.
      Можлива як переуступка, так і нотаріальне оформлення.

      Велика кухня 17м2 із ВЕЛИКИМ ПАНОРАМНИМ вікном – мрія хазяйки.
      Чорнова.
      АГВ - індивідуальний газовий котел PROTHERM, на гарантії.
      В квартирі проведена якісна мідна електропроводка за індивідуальним проектом.
      Поштукатурені всі цегляні стіни.
      Встановлено якісні ефективні радіатори опалення.

      ЖК «Західний» - якісне будівництво, малоповерхова забудова.
      Цегляні стіни з керамічної цегли М125 товщиною 510 мм.
      + енергоефективне зовнішнє утеплення товщиною 12 см.
      Якісні ліфти HAS, Туреччина.
      Притік повітря для спалювання в газовому котлі відбувається по спеціально облаштованим вентиляційним каналам тому повітря в квартирі завжди чисте та свіже, не спалюється.
      Вікна - з енергозберігаючими технологіями - 5-камерний профіль Veka, 2-камерний енергозберігаючий склопакет.
      Всі лічильники.

      В житловому комплексі – широко представлена інфраструктура : Супермаркет «Грош», Салон краси, Кав’ярня, магазин «Галя балувана», відділення «Нова пошта» та «Укрпошта», спеціалізовані продуктові та промислові магазини як в комплексі, так і в кроковій доступності від комплексу.
      До ЖК «Західний» регулярно курсує новий тролейбусний маршрут № 18, маршрутки 16А та 11Б.

      18644

      Надіслати скаргу

      Закрити
      Поскаржитися на об'єкт «шос. Барское, 105 (г. Винница, Ленинский район)»
      Ваш коментар:(Необов'язково)
      Ваша скарга буде надіслана ріелтору, що розмістив об'єкт, а також адміністрації сайту АФНУ.
      Ваше ім'я:
      (Обов'язково)
      Ваш e-mail для відповіді:
      (Обов'язково)

      Вам также могут подойти

      шос. Барское, 102 (г. Винница, Ленинский район) - Продається квартира, 44500 $ - АФНУ

      Оновлено: 5 жовтня

      Розміщено: 24 грудня 2022

      Продається квартира

      1 кімн., площа 41/15/16, поверх 6/6

      г. Винница, шос. Барское, 102

      44500 $

      Малоголовчук Олександр Леонідович

      Директор (АН "Liga-ua", г.Винница)

      Будинок зданий в 2021 році.
      Нотаріальне оформлення.
      ЖК «Західний» - якісне будівництво, малоповерхова забудова.
      Цегляні стіни з керамічної цегли М125 товщиною 510 мм.
      + енергоефективне зовнішнє утеплення товщиною 12 см.…

      Детальніше

      шос. Барское, 102 (г. Винница, Ленинский район) - Продається квартира, 44500 $ - АФНУ

      Оновлено: 5 жовтня

      Розміщено: 24 грудня 2022

      Продається квартира

      1 кімн., площа 41/15/16, поверх 6/6

      г. Винница, шос. Барское, 102

      44500 $

      Малоголовчук Олександр Леонідович

      Директор (АН "Liga-ua", г.Винница)

      Будинок зданий в 2021 році.
      Нотаріальне оформлення.
      ЖК «Західний» - якісне будівництво, малоповерхова забудова.
      Цегляні стіни з керамічної цегли М125 товщиною 510 мм.
      + енергоефективне зовнішнє утеплення товщиною 12 см.…

      Детальніше

      шос. Барское, 105 (г. Винница, Ленинский район) - Продається квартира, 49500 $ - АФНУ

      Оновлено: 25 вересня

      Розміщено: 12 травня 2022

      Продається квартира

      1 кімн., площа 47/20/12, поверх 5/6

      г. Винница, шос. Барское, 105

      49500 $

      Ломачко Тетяна Володимирівна

      ріелтор (АН "Liga-ua", г.Винница)

      Продаю 1 кімн. квартиру 47.13 кв.м. в новому сучасному житловому комплексі "Західний".
      Будинок № 7
      Квартира з АГВ, не кутова.
      Балкон з кімнати. Висота стелі 2,7 м.
      Стіни - чистова…

      Детальніше

      Коментарі