Вхід на сайт

Ел. пошта:
Пароль:

Реєстрація на сайті

Призвіще: Область:
Ім'я: Населений пункт:
    По батькові: Номер телефону:
    Ел. пошта: Компанія:
      Пароль: Посада:
      Повторіть пароль: Рік початку роботи:
      Фото:
      З правилами розміщення об'єктів погоджуюсь

      Забули пароль?

      Вкажіть ел. пошту — ми надішлемо Вам новий пароль для входу
      Ел. пошта:

      Проблема на сайті

      Закрити
      Ваш e-mail:
      (необов'язково)
      Розкажіть нам, що сталось

      112_1.jpg

      без комісії Павленка, 58 — Продається квартира

      (г. Ирпень)

      70000 $

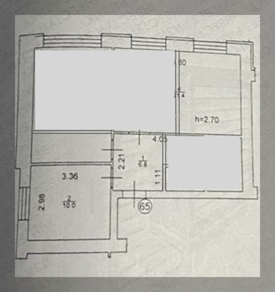
      Загальна площа: 59 кв.м

      Жила площа: 31 кв.м

      Площа кухні: 15 кв.м

      Кімнат: 2

      Поверх: 3

      К-ть поверхів: 10

      Нові Метри Center – ЖК комфорт класу в самому серці міста!

      В квартирі завершені всі чорнові роботи:
      *Є тепла підлога, радіатори, двоконтурний котел
      * Фільтр на воду
      * Розведена електрика, вода та каналізація по точках
      * Встановлена інсталяція
      * Вмонтовані підвіконня
      * Ідеально підготовлені стіни під фарбування
      * Розподільний електричний щит
      * Усі лічильники
      * Подвійні металеві вхідні двері

      Територія комплексу закрита та має власну інфраструктуру:
      зона відпочинку, сучасний спортивний, дитячий майданчик та паркувальну зону.
      Ідеальне розташування:
      поруч школа, парк, садок, центр міста.

      Надіслати скаргу

      Закрити
      Поскаржитися на об'єкт «Павленка, 58 (г. Ирпень)»
      Ваш коментар:(Необов'язково)
      Ваша скарга буде надіслана ріелтору, що розмістив об'єкт, а також адміністрації сайту АФНУ.
      Ваше ім'я:
      (Обов'язково)
      Ваш e-mail для відповіді:
      (Обов'язково)

      Вам также могут подойти

      ул. Лисенка, 14г (г. Ирпень) - Продається квартира, 69000 $ - АФНУ

      Оновлено: 14 серпня

      Розміщено: 4 грудня 2024

      Продається квартира

      2 кімн., площа 63.5/35.7/20, поверх 5/5

      г. Ирпень, ул. Лисенка, 14г

      69000 $ без комісії

      Савка-Волкошовець Анна Мирославівна

      Керівник (Сімейна агенція нерухомості Liberty (сімейна АН Ліберті))

      Простора квартира з новим ремонтом в ЖК Талісман.
      (перепланована в євродвокімнатну).
      Площа 63.5 кв.м
      Є велика засклена лоджія, кладовка в квартирі.
      Новий ремонт, є необхідні меблі та техніка.
      Опалення індивідуальне…

      Детальніше

      Університетська, 1ш (г. Ирпень) - Продається квартира, 66000 $ - АФНУ

      Оновлено: 2 вересня

      Розміщено: 28 серпня

      Продається квартира

      1 кімн., площа 47.7/22/14, поверх 7/16

      г. Ирпень, Університетська, 1ш

      66000 $ без комісії

      Савка-Волкошовець Анна Мирославівна

      Керівник (Сімейна агенція нерухомості Liberty (сімейна АН Ліберті))

      Простора однокімнатна квартира з ремонтом в Ірпені по вул. Університетська.

      Квартира площею 48 кв.м/житлова 22 кв.м./кухня 14 кв.м.
      Розташована на 7 поверсі.
      Опалення індивідуальне газове (від двоконтурного котла)
      По всій…

      Детальніше

      Василя Стуса, 62к (г. Ирпень) - Продається квартира, 76000 $ - АФНУ

      Оновлено: 6 жовтня

      Розміщено: 6 жовтня

      Продається квартира

      2 кімн., площа 60.7/39.3/13, поверх 5/5

      г. Ирпень, Василя Стуса, 62к

      76000 $ без комісії

      Савка-Волкошовець Анна Мирославівна

      Керівник (Сімейна агенція нерухомості Liberty (сімейна АН Ліберті))

      2к квартира в Ірпені біля Центрального парку
      Ірпінь, вул. Василя Стуса 62к (ЖК Пушкінський Квартал).

      Можливий продаж по Сертифікату та Постанові.
      Оформлення 2%

      Площа квартири 60м²
      Опалення індивідуальне газове
      Продаж…

      Детальніше

      Коментарі