Вхід на сайт

Ел. пошта:
Пароль:

Реєстрація на сайті

Призвіще: Область:
Ім'я: Населений пункт:
    По батькові: Номер телефону:
    Ел. пошта: Компанія:
      Пароль: Посада:
      Повторіть пароль: Рік початку роботи:
      Фото:
      З правилами розміщення об'єктів погоджуюсь

      Забули пароль?

      Вкажіть ел. пошту — ми надішлемо Вам новий пароль для входу
      Ел. пошта:

      Проблема на сайті

      Закрити
      Ваш e-mail:
      (необов'язково)
      Розкажіть нам, що сталось

      112_1.jpg

      ул. Ленина — Здається офіс

      (г. Полтава, Ленинский район)

      30000 грн.

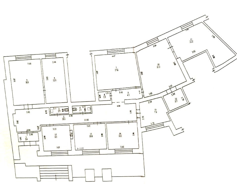
      Загальна площа: 164 кв.м

      Поверх: 1

      К-ть поверхів: 5

      Оренда офісного приміщення на Подолі по вул. Н. Сотні (зуп. Оптика, р-н маг. АТБ) з окремим входом з фасаду будинку, загальною площею 164 м2 на 9 кабінетів
      Характеристики:
      -1 поверх, вхід з фасаду будинку, парковка для авто
      - ресепшен
      - 9 кабінетів (2 кабінети з приймальнями, 5 кабінетів- окремі )
      - 2 санвузли
      - комора
      - коридор
      - висота приміщення Н= 3,05м

      Комунікації:
      - централізоване опалення та водовідведення
      - потужність електромережі 3кВт 380V
      - кондиціонування приміщень- кондиціонери в кабінетах

      Вартість оренди:
      30 000 грн/міс (оплата перший та останній місяць) + комунальні послуги+ послуги агенції нерухомості

      Надіслати скаргу

      Закрити
      Поскаржитися на об'єкт «ул. Ленина (г. Полтава, Ленинский район)»
      Ваш коментар:(Необов'язково)
      Ваша скарга буде надіслана ріелтору, що розмістив об'єкт, а також адміністрації сайту АФНУ.
      Ваше ім'я:
      (Обов'язково)
      Ваш e-mail для відповіді:
      (Обов'язково)

      Вам также могут подойти

      ул. Фрунзе, 55 (г. Полтава, Октябрьский район) - Продається офіс, 40000 $ - АФНУ

      Оновлено: 24 вересня

      Розміщено: 26 липня 2019

      Продається офіс

      1 кімн., площа 100, поверх 1/1

      г. Полтава, ул. Фрунзе, 55

      40000 $ без комісії

      Остапченко Александр Степанович

      соучредитель (Агентство недвижимости "Альянс риэлти" Полтава)

      Продажа торгово- офисного помещения общей площадью 100,6 м.кв в Центре Полтавы по ул. Европейская, 55 (дворовая часть)

      -торговый зал - 38,9 м.кв;
      -складское, подвальное помещение - 47,9 м.кв;
      -мансарда- 40…

      Детальніше

      Коментарі