Вхід на сайт

Ел. пошта:
Пароль:

Реєстрація на сайті

Призвіще: Область:
Ім'я: Населений пункт:
    По батькові: Номер телефону:
    Ел. пошта: Компанія:
      Пароль: Посада:
      Повторіть пароль: Рік початку роботи:
      Фото:
      З правилами розміщення об'єктів погоджуюсь

      Забули пароль?

      Вкажіть ел. пошту — ми надішлемо Вам новий пароль для входу
      Ел. пошта:

      Проблема на сайті

      Закрити
      Ваш e-mail:
      (необов'язково)
      Розкажіть нам, що сталось

      112_1.jpg

      без комісії Перспективна, 6 — Продається будинок

      (с. Музичи, Киево-Святошинский район)

      300000 $

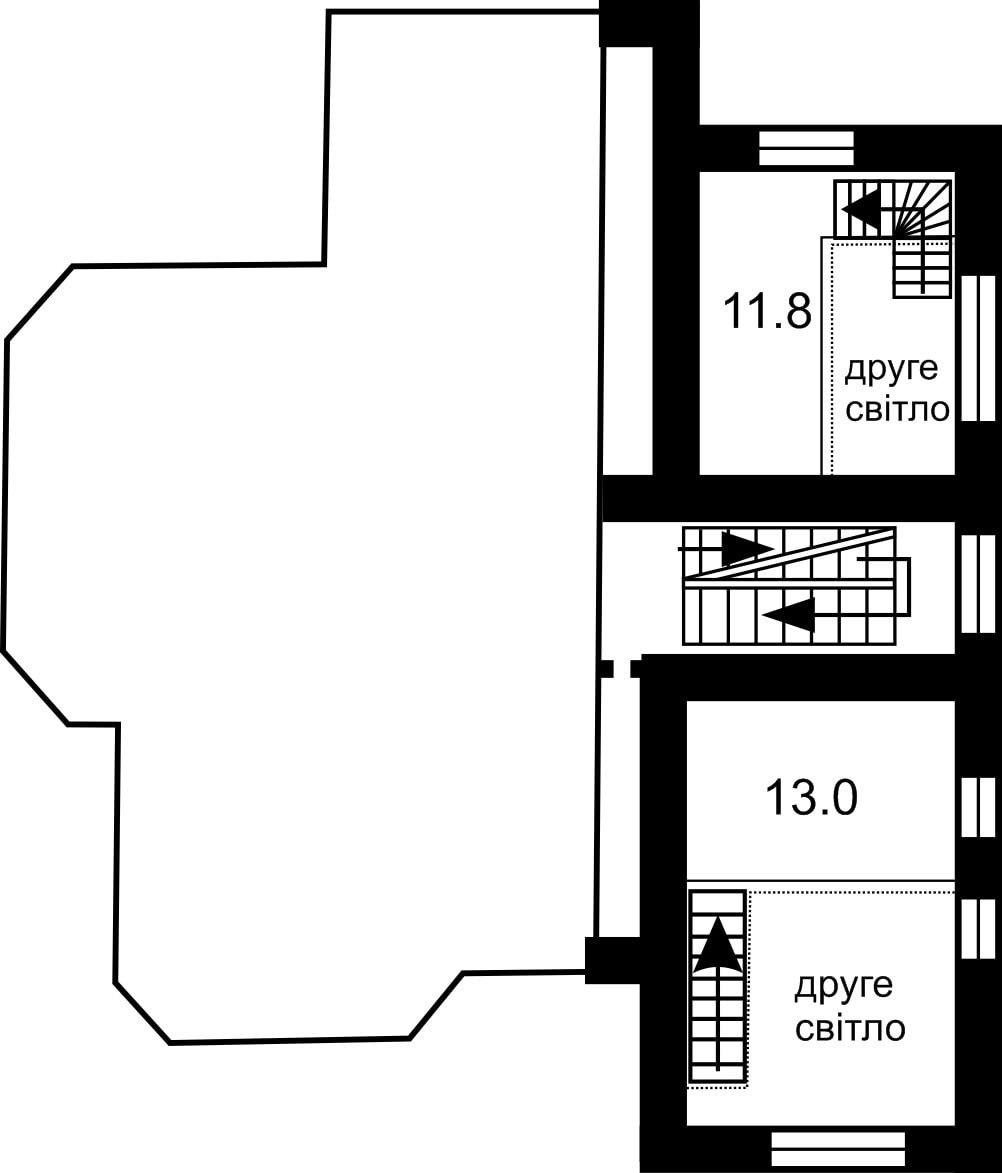
      Загальна площа: 290 кв.м

      Площа ділянки: 15 сот

      Кімнат: 5

      К-ть поверхів: 2

      Продається стильний двоповерховий будинок загальною площею 290 кв.м. та прибудинковою ділянкою 15 соток у престижному передмісті Києва, с.Музичі (25 км до станції метро Житомирська). Будинок з дизайнерським, сучасним, бездоганним ремонтом , введен в експлуатацію в 2018 році.

      На першому поверсі простора вітальня площею 46 м2 (высота стелі близько 6м), з каміном та виходом на терасу, повністю укомплектована кухня 18м2; гостьовий санвузол, коридор з виходом в сауну та котельню, в який є електрокотел, генератор , водоочисна система та пральна машина.

      На другий поверх ми потрапляємо сходами, виготовленими з натурального дерева, де розташовуються внутрішній балкон та три окремі спальні, в однієї з яких є вихід на велику терасу 18 м2 .
      Дві спальні дворівневі (спальня+ кабінет), з «другим світлом».
      Також на другому поверсі є велика світла гардеробна з величезним дзеркалом, просторий санвузол з ванною.

      Технічні характеристики:
      Будинок облаштований 4 системами опалення: твердопаливний котел, електрокотел, камін та кондиціонери .
      -Власний зареєстрований трансформатор на 40кВт;
      -Твердопаливний пелетный котел -DEFRO потужністю 35 кВт розташований в окремій котельній згідно всім вимогам безпеки;
      -Камінна топка Laudel 700 Grande Vision з можливістю опалення 24/7;
      -Електрокотел Protherm 28 кВт;
      -Комплексна система водоочистки та водопідготовки;
      -Дизельный генератор 5кВт з автоматикою , розташований в окремій генераторній;
      - Баня/сауна з фінською електротопкою Savo потужністю 8кВт;
      -Барбекю комплекс в альтанці з гранітною столешнею+ раковина + холодильник;
      -Система автоматичного поливу Hanter;
      -Тандир BIG GREEN EGG;
      -Система кондиціонування Gree (пʼять внутрішніх блоків та два зовнішніх мультиблока).
      - Свердловина;
      - Септик ;
      - Автоматичні ворота.

      На ділянці багато хвойних та фруктових дерев.

      Маєток розташований на пагорбі з неймовірним краєвидом, з усіх вікон можна милуватися яскравим західом сонця.
      Ціна будинку- 300 000 у.о., без комісії для покупця.
      Тел : 0951613484

      Надіслати скаргу

      Закрити
      Поскаржитися на об'єкт «Перспективна, 6 (с. Музичи, Киево-Святошинский район)»
      Ваш коментар:(Необов'язково)
      Ваша скарга буде надіслана ріелтору, що розмістив об'єкт, а також адміністрації сайту АФНУ.
      Ваше ім'я:
      (Обов'язково)
      Ваш e-mail для відповіді:
      (Обов'язково)

      Коментарі