Вхід на сайт

Ел. пошта:
Пароль:

Реєстрація на сайті

Призвіще: Область:
Ім'я: Населений пункт:
    По батькові: Номер телефону:
    Ел. пошта: Компанія:
      Пароль: Посада:
      Повторіть пароль: Рік початку роботи:
      Фото:
      З правилами розміщення об'єктів погоджуюсь

      Забули пароль?

      Вкажіть ел. пошту — ми надішлемо Вам новий пароль для входу
      Ел. пошта:

      Проблема на сайті

      Закрити
      Ваш e-mail:
      (необов'язково)
      Розкажіть нам, що сталось

      112_1.jpg

      без комісії Медова, 6б — Продається будинок

      (г. Золочив, Золочевский район)

      89800 $

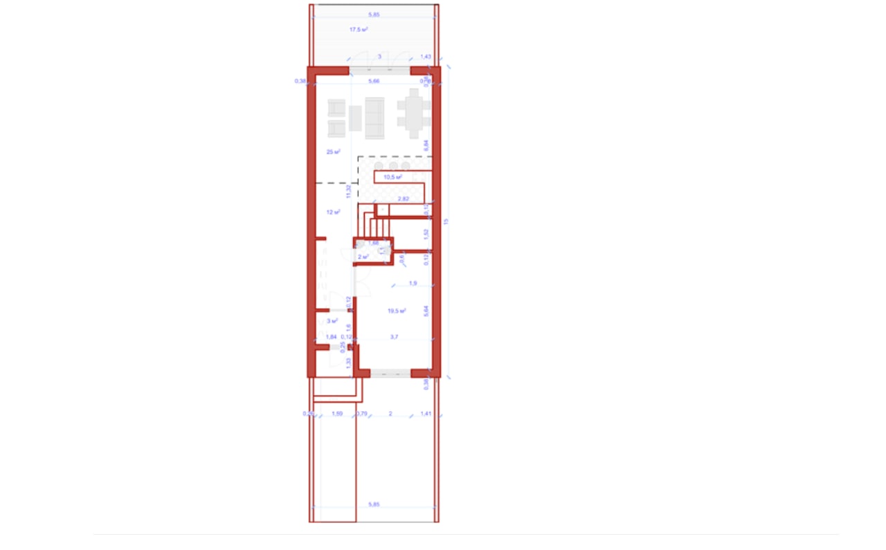
      Загальна площа: 142.6 кв.м

      Кімнат: 3

      К-ть поверхів: 2

      Продаж сучасного котеджу в Золочеві!

      Площа: 142,6 м2, ділянка: 0,0150 га. Будинок відрізняється продуманим інтер’єром: три балкони, високі стелі та панорамні вікна із чудовим краєвидом на місто. Є подвір’я та вільна прибудинкова зона, яка засаджується зеленим газоном, чагарниками і деревами. Котеджі забезпечені безперервною подачею води, газу та електроенергії.

      Оснащені відкритою терасою – це повноцінний третій поверх під відкритим небом. На терасі можна створювати лаунж-зону для відпочинку, занять спортом, проведення свят чи інших заходів. Важливо: У кожному будинку знаходиться внутрішня бетонна перегородка.
      Вона створює усі умови затишку для уникнення шуму із сусідніх будинків. Будинки здаються із поштукатуреними стінами. В технології будівництва не використовується матеріал дерево.

      Вартість: 89 800$.

      Надіслати скаргу

      Закрити
      Поскаржитися на об'єкт «Медова, 6б (г. Золочив, Золочевский район)»
      Ваш коментар:(Необов'язково)
      Ваша скарга буде надіслана ріелтору, що розмістив об'єкт, а також адміністрації сайту АФНУ.
      Ваше ім'я:
      (Обов'язково)
      Ваш e-mail для відповіді:
      (Обов'язково)

      Коментарі