Вхід на сайт

Ел. пошта:
Пароль:

Реєстрація на сайті

Призвіще: Область:
Ім'я: Населений пункт:
    По батькові: Номер телефону:
    Ел. пошта: Компанія:
      Пароль: Посада:
      Повторіть пароль: Рік початку роботи:
      Фото:
      З правилами розміщення об'єктів погоджуюсь

      Забули пароль?

      Вкажіть ел. пошту — ми надішлемо Вам новий пароль для входу
      Ел. пошта:

      Проблема на сайті

      Закрити
      Ваш e-mail:
      (необов'язково)
      Розкажіть нам, що сталось

      112_1.jpg

      без комісії ул. Леваневского — Продається квартира

      (г. Полтава, Октябрьский район)

      47000 $

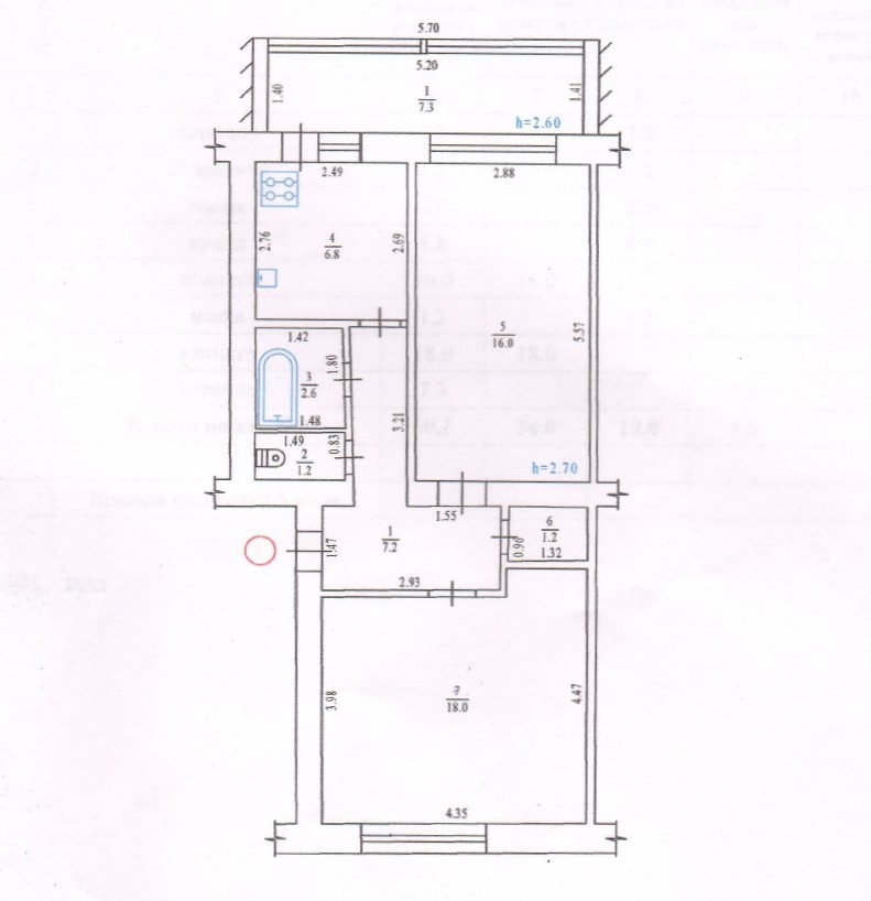
      Загальна площа: 60.3 кв.м

      Жила площа: 34 кв.м

      Площа кухні: 6.8 кв.м

      Кімнат: 2

      Поверх: 1

      К-ть поверхів: 4

      Продаж 2 кімнатної квартири в будинку на 12 квартир з індивідуальним плануванням з закритим двором в Центрі в р-ні юридичної академії Ярослава Мудрого по вул. Леваневського

      Характеристика квартири:
      - загальна площа 60,3 м2;
      - житлова площа 34,0 м2 (кімнати окремі 18 м2+ 16 м2);
      - кухня 6,8 м2;
      - лоджія 7,3 м2 ;
      - 1 поверх в 4 поверховому будинку, не кутова;
      - висота стелі Н= 2, 7 м, перекриття з/б;
      - є підвал
      Комунікації:
      - централізовані;
      - лічильники на воду, світло, газ.
      Стан:
      - вікна м/п
      - ремонту 5-7 років

      Вартість квартири $47000
      БЕЗ КОМІСІЙНИХ АН

      Надіслати скаргу

      Закрити
      Поскаржитися на об'єкт «ул. Леваневского (г. Полтава, Октябрьский район)»
      Ваш коментар:(Необов'язково)
      Ваша скарга буде надіслана ріелтору, що розмістив об'єкт, а також адміністрації сайту АФНУ.
      Ваше ім'я:
      (Обов'язково)
      Ваш e-mail для відповіді:
      (Обов'язково)

      Вам также могут подойти

      Школьный переулок (г. Полтава, Октябрьский район) - Продається квартира, 48000 грн. - АФНУ

      Оновлено: 1 вересня

      Розміщено: 12 травня 2022

      Продається квартира

      3 кімн., площа 60/38/8, поверх 4/5

      г. Полтава, Школьный переулок

      48000 грн.

      Остапченко Александр Степанович

      соучредитель (Агентство недвижимости "Альянс риэлти" Полтава)

      Продажа 3 комнатной квартиры с раздельными комнатами в Цетре, по переулку Школьному (р-н Аграрной академии), ремонту 10 лет
      Характеристика квартиры:
      - Общая площадь - 60 м.кв;
      - Жилая площадь- 38…

      Детальніше

      ул. Станиславского (г. Полтава, Октябрьский район) - Продається квартира, 55000 $ - АФНУ

      Оновлено: 24 вересня

      Розміщено: 5 квітня 2024

      Продається квартира

      2 кімн., площа 48.6/13.6/22.1, поверх 1/9

      г. Полтава, ул. Станиславского

      55000 $

      Остапченко Александр Степанович

      соучредитель (Агентство недвижимости "Альянс риэлти" Полтава)

      Продам 2 кімнатну квартиру (апартаменти з однією спальнею) у Полтаві, на м-ні Сади-3, по вул. Станіславського в новому цегляному будинку з 5-річним ремонтом, встановлено лічильник на систему опалення, гарячого та…

      Детальніше

      Школьный переулок (г. Полтава, Октябрьский район) - Продається квартира, 48000 грн. - АФНУ

      Оновлено: 1 вересня

      Розміщено: 12 травня 2022

      Продається квартира

      3 кімн., площа 60/38/8, поверх 4/5

      г. Полтава, Школьный переулок

      48000 грн.

      Остапченко Александр Степанович

      соучредитель (Агентство недвижимости "Альянс риэлти" Полтава)

      Продажа 3 комнатной квартиры с раздельными комнатами в Цетре, по переулку Школьному (р-н Аграрной академии), ремонту 10 лет
      Характеристика квартиры:
      - Общая площадь - 60 м.кв;
      - Жилая площадь- 38…

      Детальніше

      Коментарі