Вхід на сайт

Ел. пошта:
Пароль:

Реєстрація на сайті

Призвіще: Область:
Ім'я: Населений пункт:
    По батькові: Номер телефону:
    Ел. пошта: Компанія:
      Пароль: Посада:
      Повторіть пароль: Рік початку роботи:
      Фото:
      З правилами розміщення об'єктів погоджуюсь

      Забули пароль?

      Вкажіть ел. пошту — ми надішлемо Вам новий пароль для входу
      Ел. пошта:

      Проблема на сайті

      Закрити
      Ваш e-mail:
      (необов'язково)
      Розкажіть нам, що сталось

      112_1.jpg

      без комісії вул. Підпечерська — Продається квартира

      (с. Подпещеры, Тысменицкий район)

      17000 $

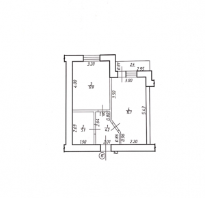
      Загальна площа: 38 кв.м

      Жила площа: 15 кв.м

      Площа кухні: 13 кв.м

      Кімнат: 1

      Поверх: 4

      К-ть поверхів: 5

      Продається однокімнатна квартира в обжитій новобудові в р-ні Угорницької школи

      Загальна площа - 38 кв.м.
      Велика кухня - 13 кв.м., що дозволить зробити зонування на кухню та відпочинкову зону.
      Хороше, практичне планування.

      Біля будинку є школа та садок, місця для паркування, магазини та автобусна зупинка. Будинок знаходиться в тихій приміській зоні – до центру міста 15 хв автобусом або 7 хв власною машиною.

      Ціна – 17000 дол., без комісії для покупця.

      Надіслати скаргу

      Закрити
      Поскаржитися на об'єкт «вул. Підпечерська (с. Подпещеры, Тысменицкий район)»
      Ваш коментар:(Необов'язково)
      Ваша скарга буде надіслана ріелтору, що розмістив об'єкт, а також адміністрації сайту АФНУ.
      Ваше ім'я:
      (Обов'язково)
      Ваш e-mail для відповіді:
      (Обов'язково)

      Коментарі