Вхід на сайт

Ел. пошта:
Пароль:

Реєстрація на сайті

Призвіще: Область:
Ім'я: Населений пункт:
    По батькові: Номер телефону:
    Ел. пошта: Компанія:
      Пароль: Посада:
      Повторіть пароль: Рік початку роботи:
      Фото:
      З правилами розміщення об'єктів погоджуюсь

      Забули пароль?

      Вкажіть ел. пошту — ми надішлемо Вам новий пароль для входу
      Ел. пошта:

      Проблема на сайті

      Закрити
      Ваш e-mail:
      (необов'язково)
      Розкажіть нам, що сталось

      112_1.jpg

      пр. Московский, 270 Б — Продається квартира в новобудові

      (г. Харьков, Орджоникидзевский район)

      26700 $

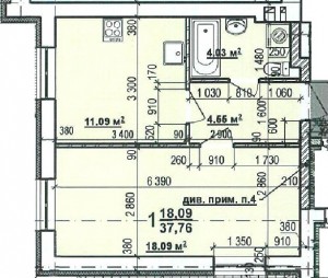
      Загальна площа: 38 кв.м

      Жила площа: 18 кв.м

      Площа кухні: 11 кв.м

      Кімнат: 1

      Поверх: 1

      К-ть поверхів: 9

      Продаю однокомнатную квартиру, общей площадью 37.76 м2, в новострое, ЖК Мира- 3, (строительный дом 3). В доме самого надёжного Харьковского застройщика, АО Трест Жилстрой 1. Квартира находится на первом этаже, девятиэтажного дома с наружным утеплением стен. Окна выходят во двор. В квартире нет несущих стен, а значит вы сможете поменять планировку на более удобную для вас. Комплектация квартиры: межкомнатные перегородки, металлическая дверь, метало-пластиковые окна, горизонтальная разводка отопления с установкой радиаторов (есть возможность установки индивидуального счётчика на тепло), электрический счётчик, гидроизоляция (стяжка) пола. В доме предусмотрены электрические кухонные плиты. Плановая сдача дома была в октябре 2021 года, к ремонту можно приступать в апреле 2022 года. Жилой комплекс расположен вблизи самого оживленного и динамичного проспекте города - Московского проспекта. Хорошая транспортная развязка (автобусы, маршрутные такси, троллейбусы), в пешей доступности находится станция метро "Индустриальная (Пролетарская)". Несколько супермаркетов, магазины строительных материалов, отделения банков, несколько школ, детские сады и многое другое - все это сделает Вашу жизнь поистине комфортной. Возле дома находится не одна спортивная площадка, стадион, различные спортивные клубы. Оформление проходит в офисе Треста Жилстрой-1. Звонки и заявки на просмотры квартир принимаются ежедневно с 9.00 до 19.00 ч.

      Озеров Александр

      Озеров Александр Александрович

      заместитель директора департамента первичной недвижимости (КРОНА Производственно-правовая фирма)

      +380 (50) 135-35... Показати номер телефона +380 (50) 135-35-07

      Поскаржитися на об'єкт

      Надіслати скаргу

      Закрити
      Поскаржитися на об'єкт «пр. Московский, 270 Б (г. Харьков, Орджоникидзевский район)»
      Ваш коментар:(Необов'язково)
      Ваша скарга буде надіслана ріелтору, що розмістив об'єкт, а також адміністрації сайту АФНУ.
      Ваше ім'я:
      (Обов'язково)
      Ваш e-mail для відповіді:
      (Обов'язково)

      Коментарі