Вхід на сайт

Ел. пошта:
Пароль:

Реєстрація на сайті

Призвіще: Область:
Ім'я: Населений пункт:
    По батькові: Номер телефону:
    Ел. пошта: Компанія:
      Пароль: Посада:
      Повторіть пароль: Рік початку роботи:
      Фото:
      З правилами розміщення об'єктів погоджуюсь

      Забули пароль?

      Вкажіть ел. пошту — ми надішлемо Вам новий пароль для входу
      Ел. пошта:

      Проблема на сайті

      Закрити
      Ваш e-mail:
      (необов'язково)
      Розкажіть нам, що сталось

      112_1.jpg

      ул. Космонавтов — Продається квартира

      (г. Николаев, Ленинский район)

      18000 $

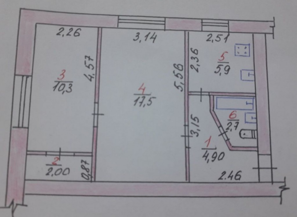
      Загальна площа: 43 кв.м

      Жила площа: 27.8 кв.м

      Площа кухні: 6 кв.м

      Кімнат: 2

      Поверх: 1

      К-ть поверхів: 5

      Квартира расположена на 1-м этаже 5-ти этажного кирпичного дома, угловая.
      Подойдет для коммерческой деятельности (офис, парикмахерская, салон), так как
      находится на первой линии домов рядом с остановкой "Рассвет" - конечная 16 маршрута.
      Общая - 43 кв. м, жилая - 27.8 кв. м (10.3 кв + 17.5 кв), кухня - 6 кв. м
      Комнаты смежные, санузел смежный. Комнаты можно разделить.

      Рядом с квартирой находятся рыночек, детский сад, ряд магазинов, супермаркет, школа, сад, остановки транспорта.
      Приглашаем на просмотр

      Надіслати скаргу

      Закрити
      Поскаржитися на об'єкт «ул. Космонавтов (г. Николаев, Ленинский район)»
      Ваш коментар:(Необов'язково)
      Ваша скарга буде надіслана ріелтору, що розмістив об'єкт, а також адміністрації сайту АФНУ.
      Ваше ім'я:
      (Обов'язково)
      Ваш e-mail для відповіді:
      (Обов'язково)

      Вам также могут подойти

      Громадянська, 42б (г. Николаев, Заводской район) - Продається квартира, 20000 $ - АФНУ

      Оновлено: 10 жовтня

      Розміщено: 24 вересня

      Продається квартира

      3 кімн., площа 56/41/4, поверх 2/5

      г. Николаев, Громадянська, 42б

      20000 $

      Жоржа Жанна Александровна

      менеджер (Агентство недвижимости ЛОТОС)

      Продаж 3 кімнатної квартири, Центр, вул. Громадянська
      2-й поверх 5-ти поверхового цегляного будинку.
      Загальна площа – 56,3 м.кв., житлова – 41,2 м.кв. (18,6+12,2+10,4), площа кухні – 4,8 м. кв.
      В…

      Детальніше

      Коментарі