Вхід на сайт

Ел. пошта:
Пароль:

Реєстрація на сайті

Призвіще: Область:
Ім'я: Населений пункт:
    По батькові: Номер телефону:
    Ел. пошта: Компанія:
      Пароль: Посада:
      Повторіть пароль: Рік початку роботи:
      Фото:
      З правилами розміщення об'єктів погоджуюсь

      Забули пароль?

      Вкажіть ел. пошту — ми надішлемо Вам новий пароль для входу
      Ел. пошта:

      Проблема на сайті

      Закрити
      Ваш e-mail:
      (необов'язково)
      Розкажіть нам, що сталось

      112_1.jpg

      без комісії ул. Половка — Здається промисловість

      (г. Полтава, Киевский район)

      55 грн. за кв.м.

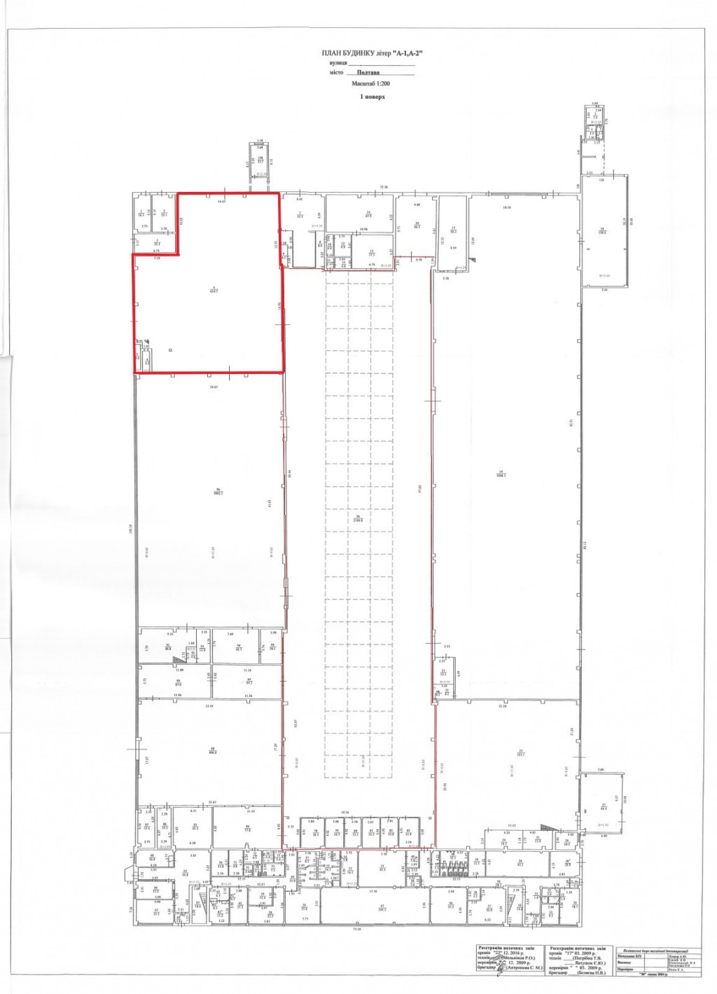
      Загальна площа: 614.7 кв.м

      К-ть поверхів: 1

      Оренда виробничо-складського приміщення площею 614,7 м2 розташованого на виробничій базі, що охороняється, в районі промислової зони Супрунівки залізничної, в р-ні вулиць Половка, Транспартна, Садовського

      - В цеху є кранбалка 3, 2 т.,
      - В цеху є обладнення
      - Висота до кранбалки Н = 9м.,
      - Висота цеху Н = 11 м.;
      - Високі ворота для в'їзду фур;
      -на виробничій базі своя підстанція 600 кВт, є майданчик з залізничною гілкою та козловим краном, опалювані офісні та побутові приміщення;
      -є резервуари для зберігання ПММ та сипких матеріалів;
      -офісні приміщення, охорона, відео спостереження

      Вартість: 55 грн/м2 з ПДВ
      В наличии есть и другие производственные и складские помещения общей площадью до 5000 м2

      Надіслати скаргу

      Закрити
      Поскаржитися на об'єкт «ул. Половка (г. Полтава, Киевский район)»
      Ваш коментар:(Необов'язково)
      Ваша скарга буде надіслана ріелтору, що розмістив об'єкт, а також адміністрації сайту АФНУ.
      Ваше ім'я:
      (Обов'язково)
      Ваш e-mail для відповіді:
      (Обов'язково)

      Коментарі