Вхід на сайт

Ел. пошта:
Пароль:

Реєстрація на сайті

Призвіще: Область:
Ім'я: Населений пункт:
    По батькові: Номер телефону:
    Ел. пошта: Компанія:
      Пароль: Посада:
      Повторіть пароль: Рік початку роботи:
      Фото:
      З правилами розміщення об'єктів погоджуюсь

      Забули пароль?

      Вкажіть ел. пошту — ми надішлемо Вам новий пароль для входу
      Ел. пошта:

      Проблема на сайті

      Закрити
      Ваш e-mail:
      (необов'язково)
      Розкажіть нам, що сталось

      112_1.jpg

      ул. Корнейчука — Продається торгівельний майданчик

      (г. Кривой Рог, Саксаганский район)

      59000 $

      Загальна площа: 113 кв.м

      Поверх: 1

      К-ть поверхів: 9

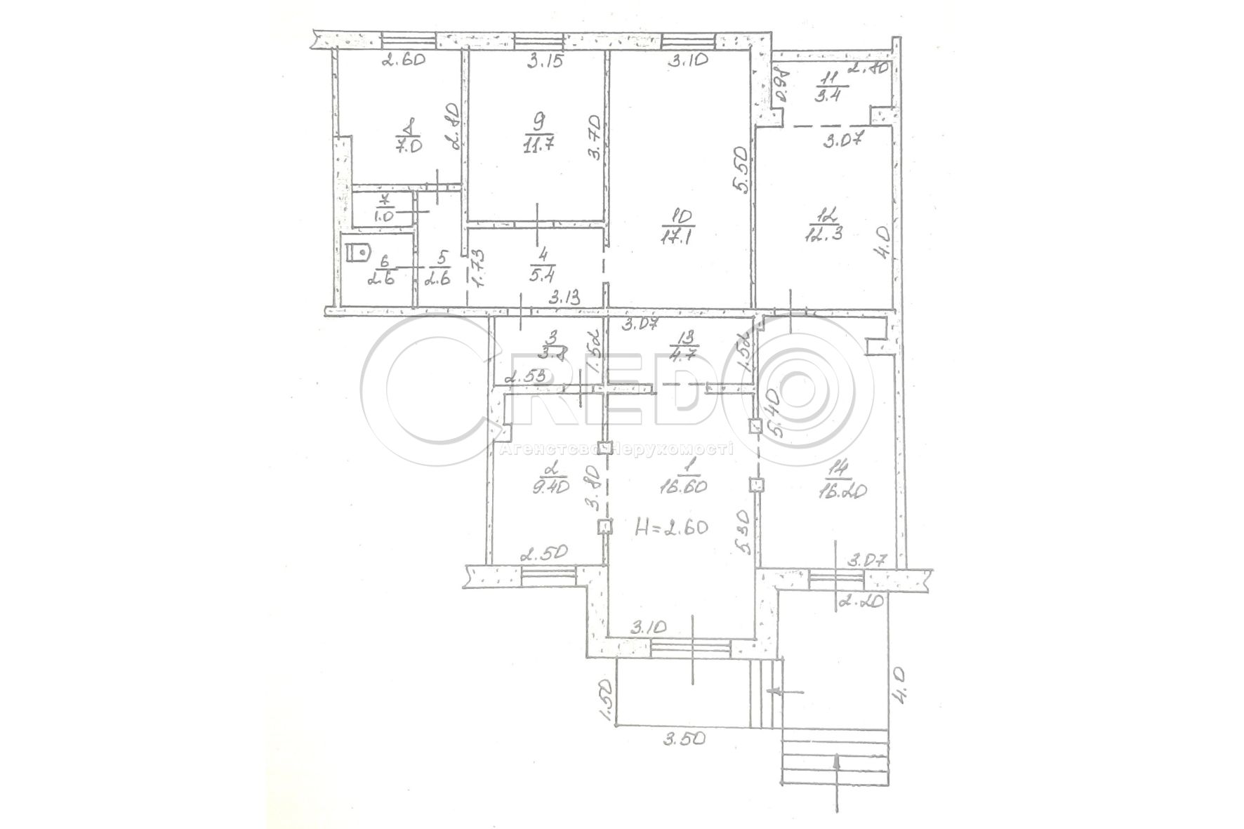
      Продається нежитлове приміщення по вул. І.Авраменка (Корнійчука).

      Технічні характеристики:
      - Приміщення розташоване на 1/9-ти пов. будинку.
      - Загальна площа 113,8кв.м.,

      Планування об’єкту: великий хол, кабінети, кухня, підсобне приміщення, сан/вузол.

      Комунікації:
      - електроенергія - 220V, 6кВт,
      - центральне водопостачання і каналізація,
      - автономне опалення - електро, від центрального опалення від'єднано.

      Приміщення в хорошому стані: підлога кахель, стеля і стіни під фарбування, нові батареї, кондиціювання, бойлер. На вікнах встановлені решітки, ролети, зовні утеплений фасад.
      Є місце для паркування.
      Зручні під'їзні шляхи.

      Логістична розв’язка:
      Густонаселений житловий масив.
      Хороша транспортна розв'язка.
      Розвинена інфраструктура.

      Ціна $59 000 (можливий торг)

      За будь-якими питаннями за цією або схожими пропозиціями звертайтесь за номером телефону, де вам відповість наш ріелтор Надія 098 985 09 08

      З повагою, команда Credo!

      Надіслати скаргу

      Закрити
      Поскаржитися на об'єкт «ул. Корнейчука (г. Кривой Рог, Саксаганский район)»
      Ваш коментар:(Необов'язково)
      Ваша скарга буде надіслана ріелтору, що розмістив об'єкт, а також адміністрації сайту АФНУ.
      Ваше ім'я:
      (Обов'язково)
      Ваш e-mail для відповіді:
      (Обов'язково)

      Вам также могут подойти

      ул. 200 лет Кривого Рога (г. Кривой Рог, Саксаганский район) - Продається торгівельний майданчик, 50000 $ - АФНУ

      Оновлено: 26 грудня 2025

      Розміщено: 19 листопада 2025

      Продається торгівельний майданчик

      площа 83, поверх 1/1

      г. Кривой Рог, ул. 200 лет Кривого Рога

      50000 $

      Літвинова Ірина Вікторівна

      Продаж нежитлової будівлі пр.200-річчя Кривого Рогу
      Нежитлова будівля розташована над проїзною частиною.
      Земельна ділянка 1,5 соток, кадастровий номер.

      Технічні характеристики:
      - Є можливість збільшити будівлю чи розташувати літній майданчик
      -…

      Детальніше

      пр. Победы (г. Кривой Рог, Ингулецкий район) - Продається торгівельний майданчик, 70000 $ - АФНУ

      Оновлено: 9 грудня 2025

      Розміщено: 12 вересня 2016

      Продається торгівельний майданчик

      площа 335, поверх 1/2

      г. Кривой Рог, пр. Победы

      70000 $

      Літвинова Ірина Вікторівна

      Пропонуємо на продаж 1/2 частину окремо розташованої 2-х поверхової торгово-офісної будівлі по пр. Перемоги (Інгулець, центр)

      Про об'єкт:
      - загальна площа - 335,45 кв.м.
      - 1-й поверх – 70кв.м.
      -…

      Детальніше

      ул. Харитонова (г. Кривой Рог, Центрально-Городской район) - Продається торгівельний майданчик, 57000 $ - АФНУ

      Оновлено: 20 січня

      Розміщено: 13 травня 2025

      Продається торгівельний майданчик

      площа 103, поверх 1/5

      г. Кривой Рог, ул. Харитонова

      57000 $

      Літвинова Ірина Вікторівна

      Продаж приміщення, вул. П. Калнишевського, Ц.-Міський р-н

      Технічні характеристики:
      - Нежитлове приміщення заг.пл. - 103,17кв.м.
      - Вбудоване в 1 поверх 5 поверхового будинку.
      - Розташоване в торці будинку.
      - Вітражні…

      Детальніше

      Коментарі