Вхід на сайт

Ел. пошта:
Пароль:

Реєстрація на сайті

Призвіще: Область:
Ім'я: Населений пункт:
    По батькові: Номер телефону:
    Ел. пошта: Компанія:
      Пароль: Посада:
      Повторіть пароль: Рік початку роботи:
      Фото:
      З правилами розміщення об'єктів погоджуюсь

      Забули пароль?

      Вкажіть ел. пошту — ми надішлемо Вам новий пароль для входу
      Ел. пошта:

      Проблема на сайті

      Закрити
      Ваш e-mail:
      (необов'язково)
      Розкажіть нам, що сталось

      112_1.jpg

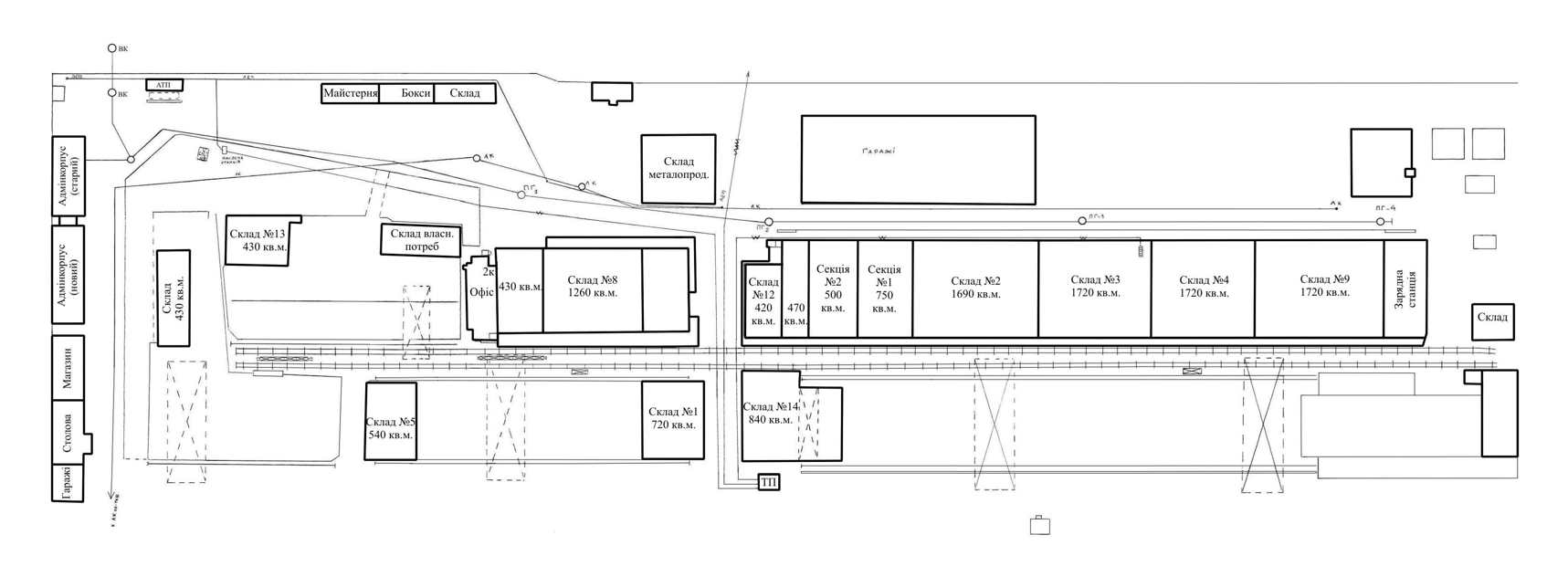
      ул. Промышленная, 20 — Продається промисловість

      (г. Тернополь)

      150 $ за кв.м.

      Загальна площа: 9000 кв.м

      Главный складской комплекс общей площадью 9 000 кв.м.
      Железобетонное помещение с авто и ж/д рампой
      Разделено на секции кирпичной кладкой
      Высота потолков в нижней точке 6 м
      На территории есть техническая вода
      Подключение до 650 кВт есть возможным при условии замены трансформаторов и силовых кабелей
      Земельный участок площадью 10,5 га

      Надіслати скаргу

      Закрити
      Поскаржитися на об'єкт «ул. Промышленная, 20 (г. Тернополь)»
      Ваш коментар:(Необов'язково)
      Ваша скарга буде надіслана ріелтору, що розмістив об'єкт, а також адміністрації сайту АФНУ.
      Ваше ім'я:
      (Обов'язково)
      Ваш e-mail для відповіді:
      (Обов'язково)

      Коментарі