Вхід на сайт

Ел. пошта:
Пароль:

Реєстрація на сайті

Призвіще: Область:
Ім'я: Населений пункт:
    По батькові: Номер телефону:
    Ел. пошта: Компанія:
      Пароль: Посада:
      Повторіть пароль: Рік початку роботи:
      Фото:
      З правилами розміщення об'єктів погоджуюсь

      Забули пароль?

      Вкажіть ел. пошту — ми надішлемо Вам новий пароль для входу
      Ел. пошта:

      Проблема на сайті

      Закрити
      Ваш e-mail:
      (необов'язково)
      Розкажіть нам, що сталось

      112_1.jpg

      ул. Космонавтов — Продається торгівельний майданчик

      (г. Кривой Рог, Саксаганский район)

      45000 $

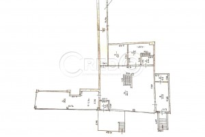
      Загальна площа: 150 кв.м

      Поверх: 1

      К-ть поверхів: 2

      Продаж магазину на "Вечірньому".
      - вул.Космонавтів,13
      - Саксаганський район

      Технічні характеристики:
      - перший поверх 3-х поверхової окремо розтошованої будівлі
      - "червона лінія"
      - приміщення в робочому стані
      - вітражний фасад
      - парковка

      Планування об’єкту:
      - загальна площа - 150 кв.м
      - два торгівельні зали
      - окремий центральний вхід

      Комунікації:
      - без опалення
      - центральне електропостачання 10кВт; 380 Вт
      - центральне водопостачання, каналізація

      Логістична розв’язка:
      - на першому поверсі "АТБ", піцерія на другому поверху спортивний клуб, дитячий магазин, поруч кафе та інше
      - зручний під'їзд
      - пішохідний та автомобільний трафік.

      Продаж 45000 у.о.

      За будь-якими питаннями за цією або іншими пропозиціями звертайтесь за номером телефону 067 696 16 51.
      З повагою, команда Credo!

      Надіслати скаргу

      Закрити
      Поскаржитися на об'єкт «ул. Космонавтов (г. Кривой Рог, Саксаганский район)»
      Ваш коментар:(Необов'язково)
      Ваша скарга буде надіслана ріелтору, що розмістив об'єкт, а також адміністрації сайту АФНУ.
      Ваше ім'я:
      (Обов'язково)
      Ваш e-mail для відповіді:
      (Обов'язково)

      Вам также могут подойти

      ул. 200 лет Кривого Рога (г. Кривой Рог, Саксаганский район) - Продається торгівельний майданчик, 50000 $ - АФНУ

      Оновлено: 26 грудня 2025

      Розміщено: 19 листопада 2025

      Продається торгівельний майданчик

      площа 83, поверх 1/1

      г. Кривой Рог, ул. 200 лет Кривого Рога

      50000 $

      Літвинова Ірина Вікторівна

      Продаж нежитлової будівлі пр.200-річчя Кривого Рогу
      Нежитлова будівля розташована над проїзною частиною.
      Земельна ділянка 1,5 соток, кадастровий номер.

      Технічні характеристики:
      - Є можливість збільшити будівлю чи розташувати літній майданчик
      -…

      Детальніше

      ул. Украинская (г. Кривой Рог, Центрально-Городской район) - Здається торгівельний майданчик, 45000 грн. - АФНУ

      Оновлено: 22 грудня 2025

      Розміщено: 1 жовтня 2025

      Здається торгівельний майданчик

      площа 225, поверх 1/2

      г. Кривой Рог, ул. Украинская

      45000 грн.

      Літвинова Ірина Вікторівна

      Оренда кафетерію вул.Українська,2а
      - м.Кривий Ріг
      - Центрально Міський район
      - "червона лінія"
      Чудова пропозиція налагодженого бізнесу, де можна заробляти з першого дня оренди.

      Про об’єкт:
      - окремо розташована двопроверхова…

      Детальніше

      ул. 200 лет Кривого Рога (г. Кривой Рог, Саксаганский район) - Продається торгівельний майданчик, 50000 $ - АФНУ

      Оновлено: 26 грудня 2025

      Розміщено: 19 листопада 2025

      Продається торгівельний майданчик

      площа 83, поверх 1/1

      г. Кривой Рог, ул. 200 лет Кривого Рога

      50000 $

      Літвинова Ірина Вікторівна

      Продаж нежитлової будівлі пр.200-річчя Кривого Рогу
      Нежитлова будівля розташована над проїзною частиною.
      Земельна ділянка 1,5 соток, кадастровий номер.

      Технічні характеристики:
      - Є можливість збільшити будівлю чи розташувати літній майданчик
      -…

      Детальніше

      Коментарі