Вхід на сайт

Ел. пошта:
Пароль:

Реєстрація на сайті

Призвіще: Область:
Ім'я: Населений пункт:
    По батькові: Номер телефону:
    Ел. пошта: Компанія:
      Пароль: Посада:
      Повторіть пароль: Рік початку роботи:
      Фото:
      З правилами розміщення об'єктів погоджуюсь

      Забули пароль?

      Вкажіть ел. пошту — ми надішлемо Вам новий пароль для входу
      Ел. пошта:

      Проблема на сайті

      Закрити
      Ваш e-mail:
      (необов'язково)
      Розкажіть нам, що сталось

      112_1.jpg

      Небесної Сотні — Продається офіс

      (г. Полтава, Ленинский район)

      50000 $

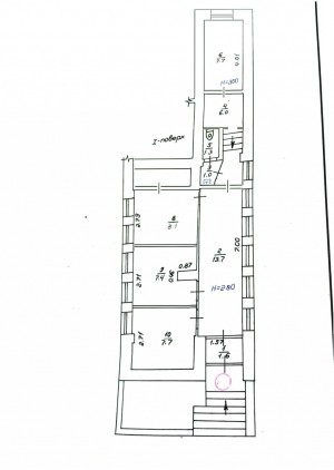
      Загальна площа: 56.8 кв.м

      Кімнат: 4

      Поверх: 1

      К-ть поверхів: 5

      Продається офісне приміщення на Подолі!
      Адреса: м. Полтава, вул. Небесної Сотні (зуп. "Оптика", район маг. АТБ)
      Загальна площа: 56,8 м²
      Формат: 4 окремі кабінети + коридор + санвузол
      Характеристики приміщення:
      • 1-й поверх
      • окремий вхід з фасаду будинку
      • зручна парковка для авто
      • висота стелі – 3,05 м
      Планування:
      • Кабінет 1 – 7,7 м²
      • Кабінет 2 – 7,4 м²
      • Кабінет 3 – 8,1 м²
      • Кабінет 4 – 7,7 м²
      Комунікації:
      • централізоване опалення
      • холодне водопостачання та водовідведення
      • електроенергія
      ✅ Ідеально під офіс, представництво компанії, навчальний центр чи салон послуг.

      Надіслати скаргу

      Закрити
      Поскаржитися на об'єкт «Небесної Сотні (г. Полтава, Ленинский район)»
      Ваш коментар:(Необов'язково)
      Ваша скарга буде надіслана ріелтору, що розмістив об'єкт, а також адміністрації сайту АФНУ.
      Ваше ім'я:
      (Обов'язково)
      Ваш e-mail для відповіді:
      (Обов'язково)

      Коментарі