Вхід на сайт

Ел. пошта:
Пароль:

Реєстрація на сайті

Призвіще: Область:
Ім'я: Населений пункт:
    По батькові: Номер телефону:
    Ел. пошта: Компанія:
      Пароль: Посада:
      Повторіть пароль: Рік початку роботи:
      Фото:
      З правилами розміщення об'єктів погоджуюсь

      Забули пароль?

      Вкажіть ел. пошту — ми надішлемо Вам новий пароль для входу
      Ел. пошта:

      Проблема на сайті

      Закрити
      Ваш e-mail:
      (необов'язково)
      Розкажіть нам, що сталось

      112_1.jpg

      ул. Отто Брозовского — Продається квартира

      (г. Кривой Рог, Долгинцевский район)

      15800 $

      Загальна площа: 48 кв.м

      Жила площа: 31 кв.м

      Площа кухні: 5 кв.м

      Кімнат: 3

      Поверх: 5

      К-ть поверхів: 5

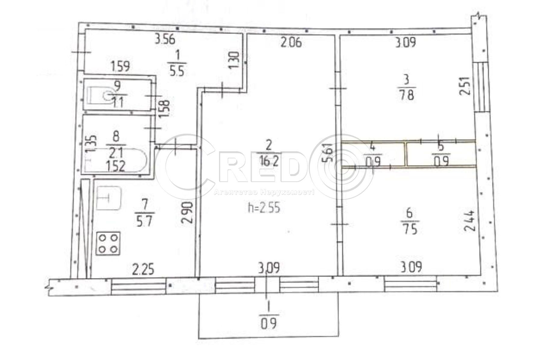
      Продаж 3-х кім. квартири вул. Ярослава Мудрого (Новинка)

      Про об’єкт:
      - Квартира розташована на 5/5-ти поверхового будинку.
      - Загальна площа 48,6кв.м.
      - Житлова 31,5кв.м.
      - Кухня 5,7кв.м.
      - Висота Н - 2.55м.

      Планування об’єкту:
      Квартира кутова, не прохідна, один балкон.

      Особливості квартири:
      Повністю поміняні вікна, замінені труби м/пл., бойлер, встановлені лічильники на світло, газ та воду.

      Ціна 15 800у.о.

      За будь-якими питаннями за цією або схожими пропозиціями звертайтесь за номером телефону 068 862 43 57.
      З повагою, команда Credo!

      Надіслати скаргу

      Закрити
      Поскаржитися на об'єкт «ул. Отто Брозовского (г. Кривой Рог, Долгинцевский район)»
      Ваш коментар:(Необов'язково)
      Ваша скарга буде надіслана ріелтору, що розмістив об'єкт, а також адміністрації сайту АФНУ.
      Ваше ім'я:
      (Обов'язково)
      Ваш e-mail для відповіді:
      (Обов'язково)

      Вам также могут подойти

      ул. Ногина (г. Кривой Рог, Жовтневый район) - Продається квартира, 14800 $ - АФНУ

      Оновлено: 27 серпня

      Розміщено: 24 березня 2023

      Продається квартира

      2 кімн., площа 50/28/7, поверх 1/3

      г. Кривой Рог, ул. Ногина

      14800 $

      Літвинова Ірина Вікторівна

      Пропонуємо до продажу мебльовану 2 кімнатну квартиру
      у Покровському районі, вздовж центральної артерії міста.
      Вулиця Ракітіна,23.
      Будинок без проблем з опаленням !
      Тепла квартира, тихе подвір'я!

      Про об'єкт:
      - 1…

      Детальніше

      Свірська (г. Кривой Рог, Жовтневый район) - Продається квартира, 16000 $ - АФНУ

      Оновлено: 8 вересня

      Розміщено: 22 травня

      Продається квартира

      3 кімн., площа 65/39/8, поверх 3/5

      г. Кривой Рог, Свірська

      16000 $

      Літвинова Ірина Вікторівна

      Продаж 3-х кім. квартири вул.227-го автомобільного батальйону (Свірська), «Крес».

      Про об’єкт:
      Квартира розташована на 3/5-ти поверхового будинку.
      Загальна площа 65.1кв.м., житлова 39кв.м.,кухня 8.3кв.м., висота Н 2.7м.

      Планування об’єкту:
      Квартира не…

      Детальніше

      ул. Тухачевского (г. Кривой Рог, Жовтневый район) - Продається квартира, 16800 $ - АФНУ

      Оновлено: 29 вересня

      Розміщено: 23 травня

      Продається квартира

      3 кімн., площа 56/40/-, поверх 2/5

      г. Кривой Рог, ул. Тухачевского

      16800 $

      Літвинова Ірина Вікторівна

      Продаж сучасної 3кімнатної квартири. "Піонер-Автотехнікум-173 квартал"

      у Покровському районі, вулиця Е.Фукса,19.
      Перепланована, відремонтована, готова до заселення.

      Про об'єкт:
      - 2 поверх 5типоверхового будинку.
      - загальна площа 56,6 м.кв.
      - житлова…

      Детальніше

      Коментарі