Вхід на сайт

Ел. пошта:
Пароль:

Реєстрація на сайті

Призвіще: Область:
Ім'я: Населений пункт:
    По батькові: Номер телефону:
    Ел. пошта: Компанія:
      Пароль: Посада:
      Повторіть пароль: Рік початку роботи:
      Фото:
      З правилами розміщення об'єктів погоджуюсь

      Забули пароль?

      Вкажіть ел. пошту — ми надішлемо Вам новий пароль для входу
      Ел. пошта:

      Проблема на сайті

      Закрити
      Ваш e-mail:
      (необов'язково)
      Розкажіть нам, що сталось

      112_1.jpg

      без комісії Шептицького, 32 — Здається торгівельний майданчик

      (г. Луцк)

      28000 грн.

      Оренда приміщення в районі пр. Відродження

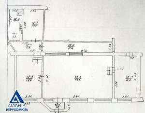
      Розташування: знаходиться на 1 пов. в 5 пов. житловому будинку по вул. Шептицього, 32. Поруч зупинки громадського транспорту, школа №17, садочок №30, супермаркет “Експрес Там-там” та ін. Швидкий доступ до вулиць К.-Карого, вул. Рівненська, п-кт Відродження, що дозволяє швидко виїхати в будь-якому напрямку міста.

      Характеристики: окремий вхід, площа - 119 м.кв., тихе, спокійне місце, санвузол, ремонт, великі фасадні вітрини, високі стелі, можливість розміщення фасадної вивіски.

      Комунікації: електроенергія по лічильнику, централізоване водопостачання та каналізація.

      Ідеально підходить під майстерню, офіс,поштове відділення, відділення фінансово-кредитних установ, страхову компанію, магазин з адресним доступом клієнтів, та ін.

      менеджер об'єкту
      Ольга Синиця
      095 805 1772

      Надіслати скаргу

      Закрити
      Поскаржитися на об'єкт «Шептицького, 32 (г. Луцк)»
      Ваш коментар:(Необов'язково)
      Ваша скарга буде надіслана ріелтору, що розмістив об'єкт, а також адміністрації сайту АФНУ.
      Ваше ім'я:
      (Обов'язково)
      Ваш e-mail для відповіді:
      (Обов'язково)

      Вам также могут подойти

      Відродження, 16 (г. Луцк) - Здається торгівельний майданчик, 30000 грн. - АФНУ

      Оновлено: 14 січня

      Розміщено: 10 червня 2025

      Здається торгівельний майданчик

      площа 55

      г. Луцк, Відродження, 16

      30000 грн. без комісії

      Данкін Олександр Олександрович

      керівник відділу комерційної нерухомості (Компанія "Атланта Нерухомість")

      Оренда фасадного приміщення по пр. Відродження

      відео: youtube.com/watch?v=DlyUvi45FC4

      РОЗТАШУВАННЯ: м. Луцьк, просп. Відродження, 16. Розвинена інфраструктура, поруч: аптека, заклади харчування, магазин побутової хімії, продуктовий магазин, зупинки громадського транспорту. Активний автомобільний,…

      Детальніше

      ул. Новочерчицкая, 1 (г. Луцк) - Здається торгівельний майданчик, 22000 грн. - АФНУ

      Оновлено: 29 грудня 2025

      Розміщено: 29 грудня 2025

      Здається торгівельний майданчик

      площа 214, поверх 1/5

      г. Луцк, ул. Новочерчицкая, 1

      22000 грн. без комісії

      Данкін Олександр Олександрович

      керівник відділу комерційної нерухомості (Компанія "Атланта Нерухомість")

      Оренда комерційного приміщення по вул. Новочерчицька

      Розташування: вул. Новочерчицька, 1. Зручна транспортна розв’язка та доїзд: ЦУМ – 10 хв, вул Ковельська – 5 хв, Київський майдан – 15 хв. Порт…

      Детальніше

      ул. Генерала Шухевича, 6 (г. Луцк) - Здається торгівельний майданчик, 20000 грн. - АФНУ

      Оновлено: 21 січня

      Розміщено: 19 січня

      Здається торгівельний майданчик

      площа 35, поверх 1/3

      г. Луцк, ул. Генерала Шухевича, 6

      20000 грн. без комісії

      Данкін Олександр Олександрович

      керівник відділу комерційної нерухомості (Компанія "Атланта Нерухомість")

      Оренда комерційного об'єкта!

      Розташування: м. Луцьк, вул. Генерала Шухевича, 6. Розвинена інфраструктура, поруч: аптека, продуктовий магазин, зупинки громадського транспорту, пошта. Активний автомобільний, пішохідний трафік. Зручна транспортна розв'язка. Фасадне приміщення.

      Характеристики:…

      Детальніше

      Коментарі