Вхід на сайт

Ел. пошта:
Пароль:

Реєстрація на сайті

Призвіще: Область:
Ім'я: Населений пункт:
    По батькові: Номер телефону:
    Ел. пошта: Компанія:
      Пароль: Посада:
      Повторіть пароль: Рік початку роботи:
      Фото:
      З правилами розміщення об'єктів погоджуюсь

      Забули пароль?

      Вкажіть ел. пошту — ми надішлемо Вам новий пароль для входу
      Ел. пошта:

      Проблема на сайті

      Закрити
      Ваш e-mail:
      (необов'язково)
      Розкажіть нам, що сталось

      112_1.jpg

      без комісії ул. Північна, 10 — Продається коммерційна ділянка

      (г. Хмельницкий, Гречани)

      434500 $

      Площа ділянки: 55 сот

      Продам землю комерційного призначення, Гречани, вул.Північна 10, 10-А, 10-Б, 10-В.
      (вздовж Південного Бугу, р-н митниці, за західною окружною).
      Площа загальна - 55 соток. (Довжина 700м, ширина 8м).
      Вартість: 7900$/сотка + витрати на переоформлення.
      Складається з 4 ділянок, на кожній ділянці є будівля з документами (загальна площа споруд 213 кв.м.)
      Кадастрові номери/площа ділянки/площа будівлі:
      6810100000:14:002:0283 / 12,96 сотки / 45,6 кв.м. (Північна 10)
      6810100000:33:001:0077 / 5,27 сотки / 21,0+117,6 кв.м. (Північна 10-В)
      6810100000:14:002:0282 / 14,96 сотки / 12,0 кв.м. (Північна 10-Б)
      6810100000:14:002:0284 / 21,81 сотки / 16,8 кв.м. (Північна 10-А)
      Приватна власність, призначення - 11.04 Для розміщення та експлуатації основних, підсобних і допоміжних будівель та споруд технічної інфраструктури (виробництва та розподілення газу, постачання пари та гарячої води, збирання, очищення та розподілення води).
      Оформлено все на ТОВки.
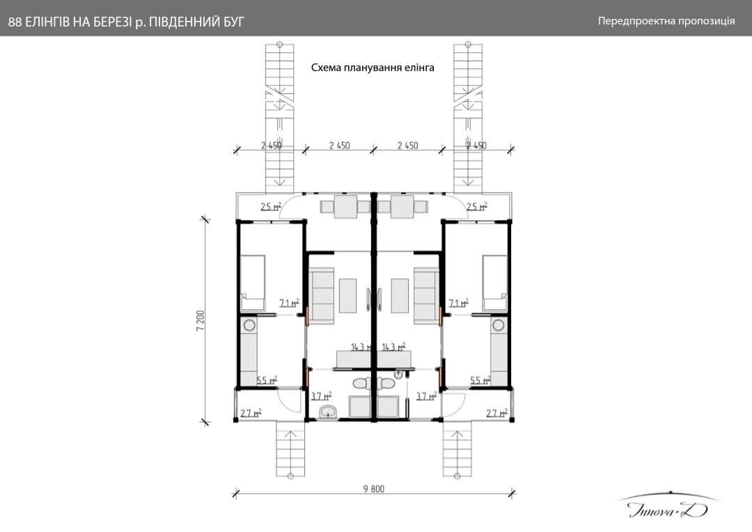
      Планувалась забудова під цікавий комплекс, попередній проект на фото.
      Можливий варіант оренди землі, або варіант дольової участі в проекті комплексу.
      Пропозиція від представника власника. Торг на місці з реальним клієнтом.

      Надіслати скаргу

      Закрити
      Поскаржитися на об'єкт «ул. Північна, 10 (г. Хмельницкий, Гречани)»
      Ваш коментар:(Необов'язково)
      Ваша скарга буде надіслана ріелтору, що розмістив об'єкт, а також адміністрації сайту АФНУ.
      Ваше ім'я:
      (Обов'язково)
      Ваш e-mail для відповіді:
      (Обов'язково)

      Коментарі