Вхід на сайт

Ел. пошта:
Пароль:

Реєстрація на сайті

Призвіще: Область:
Ім'я: Населений пункт:
    По батькові: Номер телефону:
    Ел. пошта: Компанія:
      Пароль: Посада:
      Повторіть пароль: Рік початку роботи:
      Фото:
      З правилами розміщення об'єктів погоджуюсь

      Забули пароль?

      Вкажіть ел. пошту — ми надішлемо Вам новий пароль для входу
      Ел. пошта:

      Проблема на сайті

      Закрити
      Ваш e-mail:
      (необов'язково)
      Розкажіть нам, що сталось

      112_1.jpg

      без комісії Кістяківських, 10 — Продається квартира в новобудові

      (г. Киев, Голосеевский район)

      122000 $

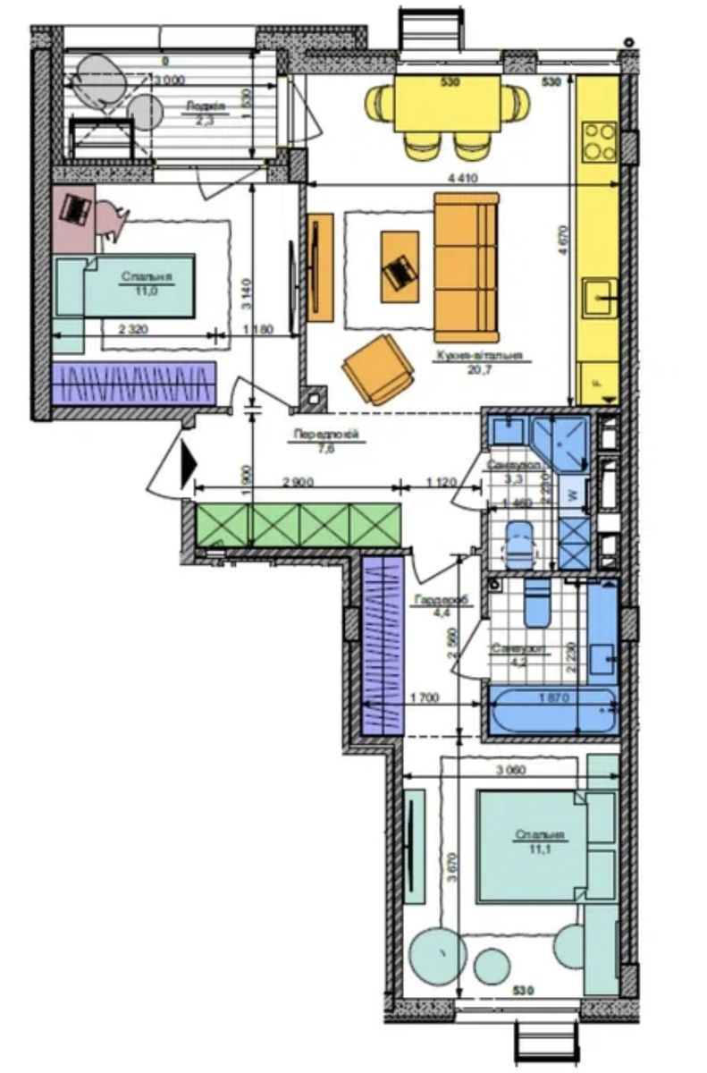
      Загальна площа: 64 кв.м

      Жила площа: 22 кв.м

      Площа кухні: 20.7 кв.м

      Кімнат: 2

      Поверх: 5

      К-ть поверхів: 9

      БЕЗ% продаж 2-кімнатної квартири 64,6 м2 по вул. Кістяківських, 10 ЖК «Республіка».
      У квартирі 2 спальні, простора кухня-вітальня площею 20,7м2 має вихід на відкриту лоджію з видом на затишний внутрішній двір з амфітеатром, 2 с/в.
      ЖК «Республіка» концепції «місто в місті» - закритий малоповерховий комплекс зі своєю інфраструктурою, дитсадками, школами, магазинами, кафе, рестораціями, прогулянковими алеями, сучасними дитячими майданчиками та майданчиками для занять спортом.
      До метро Теремки 10 хвилин пішки. Інфраструктура: - академія спорту А+ (футбол, баскетбол, теніс, бадмінтон, зона TRX) - Public centre - академія А+ - дитячий садочок та початкова школа - променадна зона 2,5 км - BBQ зона - ТЦ Республіка, Епіцентр, Метро - поруч Парки Феофанія та Пирогово.


      БЕЗ% продажа 2-комнатной квартиры 64,6 м2 по ул.Кистяковских, 10 ЖК "Республика".
      В квартире 2 спальни, просторная кухня-гостиная площадью 20,7м2 имеет выход на открытую лоджию с видом в уютный внутренний двор с амфитеатром, 2 с/у.
      ЖК "Республика" концепции "город в городе" - закрытый малоэтажный комплекс со своей инфраструктурой, дет.садами, школами, магазинами, кафе, ресторациями, прогулочными аллеями, современными детскими площадками и площадками для занятий спортом.
      До метро Теремки 10 минут пешком. Инфраструктура: - академия спорта А+ (футбол, баскетбол, теннис, бадминтон, зона TRX) - Public centre - академия А+ - детский сад и начальная школа - променадная зона 2,5 км - BBQ зона - ТЦ Республика, Эпицентр, Метро - рядом Парки Феофания и Пирогово

      Надіслати скаргу

      Закрити
      Поскаржитися на об'єкт «Кістяківських, 10 (г. Киев, Голосеевский район)»
      Ваш коментар:(Необов'язково)
      Ваша скарга буде надіслана ріелтору, що розмістив об'єкт, а також адміністрації сайту АФНУ.
      Ваше ім'я:
      (Обов'язково)
      Ваш e-mail для відповіді:
      (Обов'язково)

      Вам также могут подойти

      ул. Майкопская, 1а (г. Киев, Голосеевский район) - Продається квартира, 100000 $ - АФНУ

      Оновлено: 25 серпня

      Розміщено: 1 листопада 2023

      Продається квартира

      4 кімн., площа 97/83/15, поверх 4/6

      г. Киев, ул. Майкопская, 1а

      100000 $ без комісії

      Яковенко Виктория Владимировна

      руководитель отдела продаж (VALION Київ, Харків, Одеса, Міколаїв, Львів, Івано-Франківськ, Ужгород, Полтава, Бориспіль, Ірпінь, Вишгород)

      Продається видова дворівнева квартира з двома великими видовими терасами (15 та 30 м²) на 4-5 поверхах шестиповерхового будинку. Квартира після будівельників загальною площею 97 м² має вільне планування, що дає…

      Детальніше

      ул. Майкопская, 1а (г. Киев, Голосеевский район) - Продається квартира, 100000 $ - АФНУ

      Оновлено: 25 серпня

      Розміщено: 1 листопада 2023

      Продається квартира

      4 кімн., площа 97/83/15, поверх 4/6

      г. Киев, ул. Майкопская, 1а

      100000 $ без комісії

      Яковенко Виктория Владимировна

      руководитель отдела продаж (VALION Київ, Харків, Одеса, Міколаїв, Львів, Івано-Франківськ, Ужгород, Полтава, Бориспіль, Ірпінь, Вишгород)

      Продається видова дворівнева квартира з двома великими видовими терасами (15 та 30 м²) на 4-5 поверхах шестиповерхового будинку. Квартира після будівельників загальною площею 97 м² має вільне планування, що дає…

      Детальніше

      ул. Драгоманова, 17 (г. Киев, Дарницкий район) - Продається квартира, 125000 $ - АФНУ

      Оновлено: 25 серпня

      Розміщено: 14 липня

      Продається квартира

      4 кімн., площа 150.4/82.3/25.4, поверх 10/11

      г. Киев, ул. Драгоманова, 17

      125000 $ без комісії

      Яковенко Виктория Владимировна

      руководитель отдела продаж (VALION Київ, Харків, Одеса, Міколаїв, Львів, Івано-Франківськ, Ужгород, Полтава, Бориспіль, Ірпінь, Вишгород)

      Без комісії для покупця!

      Дворівнева 4-кімнатна квартира з дизайнерським ремонтом на Позняках.

      вул. Драгоманова, 17 | 150, 4 м² | 2 рівні | метро 10 хв пішки

      Шукаєте по-справжньому простору,…

      Детальніше

      Коментарі